Home What's New | Challenge for Change  | Links  | Archive | About  | Site Map

KEW COTTAGES COALITION

nav-bar


You can support kew.org.au by making a small donation
or make a statement with  4Kew Art - Click here to order -

  Don't Screw
                KewArchive 2010  at WWW.KEW.ORG.AU
Kew Cottages Coalition Reg # A0044698H

The Big Con ?

Yarra River Green
                                            Wedge
The Yarra River Green Wedge established in 1984. Kew, Melbourne Australia.

This prize 27 hectare site just kilometres from the city is

being developed on a model than concerns
the Committee greatly....






"... The final financial return to the State will not be known until the end of the project...."

Department of Human  Services
Melbourne
March 29th 2010


  "...  If a con game is successful, the mark does not realize he has been "taken" (cheated), at least not until the con men are long gone..."
 
(Read More)

Audio Listen to "The Sting.."

**
---

**
Follow kewcottages on Twitter



 
This
STOP PRESS
August 2010
  4 months to the State Election

Calendar August 2010
Kew Cottages History by 4Kew

Thursday   4th August 2010
Main Drive Kew Buyers Beware !
More Government secrets...
Main Drive Buyers Beware !
Main Drive Residents Warning

Main Drive Buyers Beware !Developer stonewalls

Stone Villas... and Stone Walls... Have you read the Government's fine print at Main Drive Kew ?

Walker Corporation and the Victorian Government launched their Main Drive Kew Stage 3B sales campaign last week.

 However, if you are thinking of buying, first read 
what The Australian  has to say about the developers, warns the Main Drive Owners Group...




Wednesday   3rd August 2010
Main Drive Kew Buyers Beware !
More Government secrets...
Main Drive Residents Warning

Main Drive Buyers Beware !What you pay for may not b e what
                                you get

Walker Corporation and the Victorian Government launched their Main Drive Kew Stage 3B sales campaign last week.

 However, if you are thinking of buying, first read 
what The Age has to say about Stage 1, warns the Main Drive Owners Group...




  Tuesday 2nd August 2010
Main Drive Kew Buyers Beware !
More Government secrets...
Main Drive Buyers Beware !Parliament of Victoria


Andrew
                                  McIntosh MP for KewLast week local MP Andrew McIntosh, raised residents complaints about Main Drive Kew in State Parliament.


Mr. McIntosh said that,  "When government is conducted in secret there is no guarantee of integrity, yet secrecy is becoming the hallmark of the Brumby Labor government, with increasingly real and genuine concerns about its integrity.

New householders of the Kew Cottages redevelopment have been finding out just how secretive the Brumby government is.... (Read More .)




Monday 1st August 2010
Main Drive Kew Buyers Beware !


Main Drive Residents Warning



Main Drive Buyers Beware !What you see may not be what you get

Walker Corporation and the Victorian Government launched their Stage 3B sales campaign last week, but the Main Drive Kew Owners Group is warning potential buyers that "What you see may not be what you get.."

The Owners Group represents residents who bought house/land packages from the Victorian Government in the first stage of the Main Drive Kew housing estate, and they say longstanding complaints dating back as far as 2008 still remain unresolved.





July 2010
  5 months to the State Election

Calendar July
                                          2010
Kew Cottages Future by 4Kew



Saturday 31st July 2010
Main Drive Buyers Beware !

Main Drive Kew Residents Protest

Main Drive Kew Residents protest at the opening of Stage 3B sales by the Walker Corporation and Victorian State Government
.

Residents that have resided in Stage 1 for 2 years say that they are still waiting for the Walker Corporation and the State Government to address their significant concerns regarding contractual issues and defects... (Read More >> )

Now Walkers and Major Projects Victoria (MPV) are requesting  that residents sign a Confidentiality Deed before commencing discussions regarding  their concerns.





Justin Madden
                                            interviewed at Parliament
                                            HouseWednesday 14th July 2010
Q. When is a 'Master Plan' not necessarily an 'Approved Plan' ?
A. When it is a Victorian Government Housing Estate Plan ...
It now appears that the Minister for Planning, Justin Madden,  has  been asked to provide retrospective planning approval for changes to the Main Drive Kew Master Plan.

So, after the Windsor Hotel email scandal, what will Justin Madden do now about Public Consultation ?


Will the Planning Minister's judgement be swayed by the fact that his colleague  the Minister for Major Projects,
Tim  Pallas, appears to have already secretly given the Victorian Government's 'Good Housekeeping Seal of Approval' to the 'new' Master Plan  nearly a year ago ?


Will we see a bit more of the grandeur of Madden's 'Windsor Hotel Email 'style 'Public Consultation' to help paper over our 'Bastille Day' Danger Signs at Kew ?

Will we perhaps see the Bicycle Victoria Team being 'harmonised with Walker 's (sic) desire to change a 'Heritage Walk' into a Main Road ?

That
appears unlikely.  Indeed as far as we are aware Bicycle Victoria have not even been consulted yet by Minister Madden on the proposed changes to the  'Heritage Walk' and Bike Path on the Yarra Bend Park and Willsmere border (see current plan below).

Does the Planning Minister's current strategy includes consultation with residents in the adjoining Willsmere estate ? If so, then he has kept very quiet about it.

Both Kew Cottages and Willsmere are under State Heritage Control.

State Heritage control is Madden's portfolio responsibility.

So it would certainly be helpful  if the Minister does decide to consult Willsmere residents.

Main Drive Kew was originally built as the Main Drive for Willsmere in 1872.

So the current residents may be very interested to know if there is now a real possibility of properly restoring the former grandeur of Main Drive all the way from Princess Street to Willsmere.

Boroondara Council has said that in their view the Minister should consult residents.

However, so far the Minister appears to have turned a deaf ear to Council's request ...


We wonder why ?


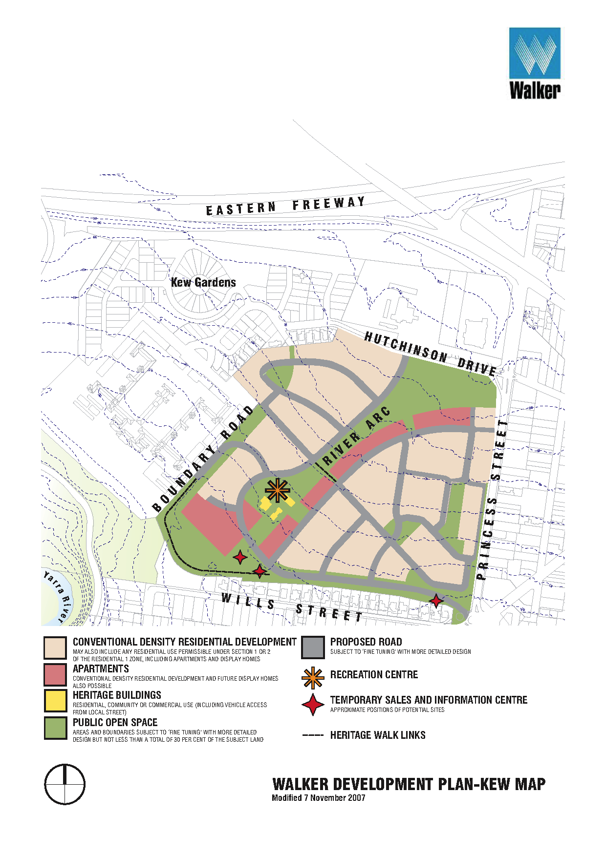
Project
                                Staging Plan 2007     Modified Plan 3 June 20102010: Bike Path becomes Road (Grey)
2007/08: The Bike Path and Heritage Walk, shown here as a dotted white line on the
Yarra Bend Park Border.

Nearly a year ago, in August 2009,  Major Projects Victoria  secretly amended their Kew Development contract with Walker Corporation. Included in the secret contract was a new Master Plan for the site. 

Now it appears Walker Corporation are seeking retrospective planning approval  from Minister Madden for the August 2009 Plan.

 A 'Modified Walker Development Plan - Kew Map'  (aka 'The Master Plan' shown below) was submitted for planning approval on  3 June 2010 - nine months after  Major Projects amended the Walker Contract.


WDPK Map Application 3-Jun'10






Boroondara Council warned Heritage Victoria and the Department of Planning  back in March 2010 that critical ingredients were missing from Walker's Permit Application for Stage 3A.



"... The documentation should include a whole site plan or a master plan that simply
includes all existing, proposed and future stages to show how the current stage
will fit within the bigger picture and context.

"This is a basic requirement for any
development if a comprehensive assessment and informed opinion is sought.



"The landscape plan concept is the only documentation that gives a reference to
some of the surrounding buildings and spaces and it hardly has any details. The
plan refers to a set of heritage conservation plans and approval that dates back
to 2008, which obviously justifies the proposed works to the heritage buildings. .

"However, how this relates  to the surrounding development is unclear. A
reference is made on the plan to the Walker Development Plan, which should
have accompanied the documentation for this stage, and any other stage, to
clearly demonstrate the manner in which these works will fit within the broader
area plan.... "



Wednesday
14th July 2010
Heritage VictoriaThe Heritage Club Cookbook.   Kew Cottages STAGE 3B

Danger SignsSigns of Sham Public Consultation ...

What is a poor developer to do when he has been given two incompatible Master Plans for Main Drive Roads and Public Green Space ?


Well judging by recent events including a Walker Corporation Main Drive Kew Application lodged with the Minister for Planning, Mr. Justin Madden 
last month, promoting fine grain public consultation by the Victorian Government is not very high on a developer's agenda.

  • Danger Sign 1- Public Roadworks.
    The current Walker Stage 3B Application for a Heritage Permit  fails to warn the public that the proposed road network in the Application is incompatible with the Planning Minister's approved Master Plan for developing the site.
  • Danger Sign 2 - Public Consultation.
    Madden has failed to inform and consult residents on a late Application by Walker to now change the Master Plan.
  • Danger Sign 3 - Lack of Transparency.
    It looks as though,  when a developer needs Mr. Madden to approve moves and/or changes in an existing Master Plan, eg: changing a bike path into a Main Drive Bus route, then they will try to avoid plain english words like "
    moves and changes" in their planning application , and instead use more ambiguous words like
    fine tuning', 'harmonises with',  and 'extending the grandeur of Main Drive'. The developer's planning application will also probably seek the Minister's approval for an 'addendum', rather than an 'amendment' to the existing Master Plan.

Now Alice is really confused :-)




Tuesday 13th July 2010
Fact and  Opinion..Alice at the Tea Party

Welcome back to the 'Mad Hatter's Tea Party'... Where everything that is, isn't, everything that isn't, may be, and everything you think you know is absolute nonsense.

There has been another sudden flurry of activity.. the Dormouse has struggled out of the Teapot to pen a missive to Alice,  and the Mad Hatter and the Hare are hard at work mopping up spilt milk with their paper napkins...
Heritage Victoria The Heritage
                                                  Dormouse in a TeapotThe Heritage Club Cookbook.  Kew Cottages STAGE 3B

The Alice in Wonderland Expanding Heritage Menu.
... "Sometimes more is less .."

Whoops, the Stage 3B Kew Permit Application has suddenly changed. On Tuesday 13th July  Jim Gard'ner,  Executive Director, Heritage Victoria writes :

Thank you for your email.  We were aware of the late provision of documentation for on-line advertising of Permit P15955, and as such have requested that the permit notices remain up for 14 days from last Friday (9 July 2010).

This means submissions will have been advertised for more than 20 days (14 of which the full documentation was available - including the individual house designs that are not on-line but are available to view at Heritage Victoria's offices during work hours).  Submissions are now due on Friday 23 July 2010.

I attach the extract from the relevant heritage web page (www.heritage.vic.gov.au/Permits/Advertised-Permit-Applications.aspx) for your information

VHR2073 Former Kew Cottages Princess Street Kew
Permit application P15955 for stage 3B development of 32 lot subdivision each with a residence. Submissions due by 5pm Friday 23 July 2010.
Please note: a large number of drawings were also submitted detailing the various house designs proposed. These may be viewed at the offices of Heritage Victoria Level 4, 55 Collins Street or by calling Janet Sullivan on (03) 8644 8950...

However, Alice finds the expanded  ingredients for the Stage 3B Application most confusing.

Firstly, 7 out of the 10 new Stage 3B Application drawings published on the website have been wrongly labeled. 

Secondly, the Application drawings appear to be inconsistent with Madden's approved blueprint for the site.

Finally, a key policy document relied on by the Application,  the Kew Cottages Cultural Heritage Management Plan, still appears to be missing.

However, Heritage Victoria do not appear to be too concerned about this 'non compliance' with their Application criteria. Our email and phone calls remain unanswered. And the Stage 3B Application errors and omissions on the Government's Heritage Victoria website remain uncorrected.

The Dormouse appears to have gone back to sleep again in the Teapot...

Is this just another form of the Windsor Hotel Sham Public Consultation by the Victorian Government ?







   Friday 9th July 2010
Kew Cottages STAGE 3B
Heritage Victoria
Heritage Victoria Website Updated
  Extract from Permit Applications Page

Stage 3B Application As Advertised
 Plus Details of Website Document Errors and Omissions as marked *


Cape Otway Lighthouse


VHR2073 Former Kew Cottages Princess Street Kew

Permit application P15955 for stage 3B development of 32 lot subdivision each with a residence. Submissions due by 5pm Friday 23 July 2010.

Please note: a large number of drawings were also submitted detailing the various house designs proposed. These may be viewed at the offices of Heritage Victoria Level 4, 55 Collins Street or by calling Janet Sullivan on (03) 8644 8950.

Heritage Impact Statement (1558kb)
Arborist Advice (319kb)
Traffic report (3646kb)
plan of subdivision (934kb)
streetscape part 1 (2068kb)
streetscape part 2 (1901kb)
streetscape part 3 (4462kb)
streetscape part 4 (645kb)
Masterplan concept (526kb)* Error this file is not the Masterplan concept drawing
Masterplan setback ground floor (526kb)* Error this file is not the Masterplan setback ground floor drawing
Masterplan site layout ground floor (2715kb) *Error this file is not the site layout ground floor drawing
Masterplan site layout first floor (3306kb) *Error this file is not the site layout first floor drawing
Masterplan tree identification plan (3291kb) *Error this is not the tree identification plan
Masterplan existing conditions plan (3769kb)
Application drawing set part 1 (4119kb) *Error this is the Masterplan tree identification plan
Application drawing set (3769kb) *Error this is a duplicate copy of the exisiting conditions plan







June 2010
6 months to the State Election

Calendar June
                                          2010
Willsmere Towers and Kew Cottages from Spring Street by Tony Michael





Wednesday 30th June 2010
Kew Cottages STAGE 3B

The Age Public Notice

Heritage Victoria
Heritage Victoria Website
Advertised Permit Applications

Cape Otway Lighthouse


VHR2073 Former Kew Cottages Princess Street Kew

Permit application P15955 for stage 3B development of 32 lot subdivision each with a residence.

Submissions due by 5pm Wednesday 14 July 2010.

Please note: a large number of drawings were also submitted detailing the various house designs proposed. These may be viewed at the offices of Heritage Victoria Level 4, 55 Collins Street or by calling Janet Sullivan on (03) 8644 8950.

Heritage Impact Statement (1558kb)
Arborist Advice (319kb)
Traffic report (3646kb)
plan of subdivision (934kb)





Saturday 26th June 2010

That Was The Week That Was...


Spooner Cartoon The Light on the Hill
Tandberg Cartoon



Thursday 24th June 2010




Watchdog slams 'inept' $400m projects

ROYCE MILLAR

STATE and local government officials damaged the integrity of two controversial development projects through poor handling of conflicts of interest and probity, according to the State Ombudsman.

In a 180-page report tabled yesterday, George Brouwer criticises both the state and the City of Port Phillip over the failed $400 million revamp of St Kilda's triangle site, and the troubled transformation of Kew Cottages for up-market private housing.... (Read More >>
)




Wednesday 23rd June 2010

Ombudsman VictoriaGeorge Brouwer. Victorian
                                  Ombudsman



"... My investigation was hampered because there were obvious gaps in the documents held on file and some important documents could not be located...
... A full set of records simply did not exist.
..

George Brouwer, Ombudsman Victoria



Wednesday 23rd June 2010Bill
                                              Shorten
Shonky Practices Revealed by Ombudsman:

The Government's Kew Cottages Project Director held shares in Property Developer !
and
The Government's Executive Director was also working for BP Australia !

Today's Report by the Victorian Ombudsman, Mr. George Brouwer, on the controversial Kew Cottages and St Kilda Triangle Public Land Developments has slammed the management of both developments.
Mr. Brouwer reveals that the Kew Development Project Director, Major Projects Victoria, had a conflict of interest, and had failed to declare that he held shares in a property development company, Mirvac.
(Read more >>)


Wednesday 16th June 2010
The Australian

Lang Walker settles developer claim


Maurice Dunlevy


A SUPREME Court action by a former Victorian chief executive of Mirvac against property billionaire Lang Walker has been settled out of court.

High-profile Melbourne developer Kevin Hunt, a former consultant to Walker Corporation's $400 million Kew Cottages development, claimed he was owed millions of dollars after being dumped from the luxury housing project in mid-2007.

Walker Corporation, which had earlier employed Mr Hunt as its Victorian business development manager, later hired him as a consultant to lead the controversial inner-east redevelopment of the disabled persons facility, a joint venture between Walker and the Victorian government.

Walker and HuntHowever, Walker subsequently terminated the Hunt consultancy agreement, claiming the initial 44 homes built  as part of the first 55-property stage one of the project were behind schedule and over budget...
 
Read More >>




Thursday 3rd June 2010



John brumby and Elizabeth proust
Premier John Brumby announces there will be an independent anti-corruption and integrity commission after a review by Elizabeth Proust. Photo: Angela Wylie

Brumby's backflip on anti-corruption body acts to restore public's faith
FARRAH TOMAZIN

ANALYSIS

Finally, John Brumby blinked.

After years of insisting that independent anti-corruption commissions provide little more than a ‘‘lawyers’ picnic’’ the Premier has bowed to public pressure — six months out from an election — and decided Victoria needs one.
Read More >>





May 2010
Madden is back
7 months to the State Election

Calendar May 2010
Oak Walk, Kew Cottages by 4Kew





  Monday 10th May  2010
Madden
                                                  can't recall

The Planning Minister, Justin Madden, issues Kew Cottages Stage 3A
Planning Permits 2010 00 6022
& 2010 00 4598




Wednesday 5th May 2010Bill Shorten
Has the White Knight already been lost in the Western suburbs of Melbourne ? We check the disastrous state of the Government's Respite Waiting List here in the DHS Eastern Region of Melbourne - after Madden approved bulldozing the Hamer Centre and 60 Respite Beds.  Then we write to Bill Shorten, Parliamentary Secretary for Disabilities and Children's Services, once more... White Knight



Tuesday 4th May 2010

Heritage Victoria The Heritage
                                                  Dormouse in a TeapotThe Heritage Club Cookbook.  Kew Cottages STAGE 3A

The Executive Director of Heritage Victoria issues Heritage Permit P15474





April 2010

Another Bad Month for Madden
8 months to the State Election

Calndar April 2010
Main Drive Sign, Kew Cottages
by 4Kew
The Government calls this their 'Flagship" Disability Project

But it is a Flagship without a Flag...



Saturday 17th April 2010



Bill
                                  Shorten
Shorten the white knight for no-fault disability insurance

ADELE HORIN writes

Bill Shorten has been called many names in his trajectory from union leader to parliamentary secretary for disabilities and children's services: Slick Willy, Showbag Bill, "more salesman than substance''. Energetic, ambitious, a charmer with a faultless memory for names, there is something about the Labor MP, once touted as a possible   future prime minister, that seems too good to be true. Is this guy sincere or just on the make?


Wednesday 14th April 2010

Parliament of
                                              Victoria  "Help keep the bastards honest... "


LEGISLATIVE COUNCIL
STANDING COMMITTEE ON
FINANCE AND PUBLIC ADMINISTRATION

7th Report to the Legislative Council
INQUIRY INTO VICTORIAN GOVERNMENT
DECISION MAKING, CONSULTATION AND
APPROVAL PROCESSES
FIRST INTERIM REPORT – APRIL 2010
This first interim report is a listing of all correspondence relating to invitations
and summonses to witnesses to give evidence at public hearings in relation to
the Windsor Hotel redevelopment planning process...
Read More >>

Rob Hulls ltr extract 9-Mar'10






Wednesday 14th April 2010Fact and  Opinion..Alice at the Tea Party

After weeks of silence on the Kew Development frontline ... Welcome back to the aftermath of what looks like another 'Mad Hatter's Tea Party'... Where everything that is, isn't, everything that isn't, may be, and everything you think you know is absolute nonsense.

There has been a sudden flurry of communications.. the Dormouse has struggled out of the Teapot to pen a missive to Alice,  and both the Mad Hatter's and Hare's delegates have dipped deeply and eloquently into their electronic inkwells to help keep Alice misinformed ...
Heritage Victoria The
                                                Heritage Dormouse in a
                                                TeapotThe Heritage Club Cookbook.   Kew Cottages STAGE 3A

The Alice in Wonderland Shrinking Heritage Menu.
... "Sometimes less is more .."

Whoops, the Stage 3A Kew Permit Application  has suddenly changed. On Monday 12th April  Ray Osborne, Acting Executive Director, Heritage Victoria writes :

I advise that in response to submissions received in relation to the recent Heritage Permit
application, the applicants have advised that it is withdrawing that part of the application
relating to the three buildings in the historic core, and the proposed sports building, and
associated works, leaving only the 12 lot subdivision to be considered at this stage.
The 12 lot subdivision proposal has been slightly revised, (Lot 136)...

Alice finds the remaining ingredients are still too obscure, and too inconsistent with Madden's published blueprint for the site to provide a clear idea of what this fragment of a new and apparently still secret 'blueprint' entails.

However, Heritage Victoria do not appear to be concerned about this 'non compliance' with their Application criteria.

".. That's a matter for the Minister.." says the Dormouse.

Then we learn that many submitters have not even received the new documents sent by Heritage Victoria...


Is this just another form of the Windsor Hotel Sham Public Consultation by the Government ?



The Alice in Wonderland Walker Contract.... "Open, Fair, and Responsible ?' - Perhaps not...

The next day, Tuesday 13th April, the Government suddenly and belatedly 'updates' its online Victorian Contract Publishing System with details of a 7 month old change to its 2006 Kew Cottages Contract with Walker Corporation. That is the contract which is currently under investigation by the Victorian Ombudsman.

It appears that despite the Ombudsman's Investigation, the Government failed to publish the new Deed of Variation (28-Aug'09)  within the prescribed timeframe
on the Government Contract Publishing System (CPS) (ie: within four weeks of the agreement).

Strangely,  the August 2009 Deed of Variation includes a requirement that purchasers of new properties in the Main Drive Kew Development must now sign away their legal right to object to any of Walker Corporation's Permit Applications, such as the Current Stage 3A Applications. "Not my concern," says the Dormouse. "They are adults.."

The 7 month delay in the publication of the Deed of Variation also means that at the time the Stage 3A Heritage Permit application was advertised in February 2010, the public and Purchasers were totally unaware that the Government and Walker Corp had already preempted the State's Heritage and Planning approval processes by agreeing to a new Masterplan (Schedule 2) for the site. "Hear ! Hear !," says the Hare.


The Alice in Wonderland Planning Permit.

The next day, Wednesday 14th April, the Government Planning Regulator (DPCD) writes that it is "seeking an independent review of all documentation by SJB Planning". Coincidentally it appears that the same  'SJB Planning' also acted for the Government Owner/Developer (DHS) in 2005 when DHS sought a Demolition Permit for 3 of the 6 remaining high status State Heritage Listed Cottages in Stage 3. But that is alright apparently because SJB, like Walker Corporation in 2005 was acting for DHS, and not Walker Corporation... DHS then proceeded to give Walker Corporation the Stage 3 Heritage Demolition Permit.... Flexibility is everything it seems when it comes to Conflict-of-Interest issues at some Tea Parties ... " ... Z.z.z ... ," says the Dormouse..



Wednesday 14th April  2010 Fact and  Opinion..

Spooner's PPP Cartoon Not
                                  the Last Supper
Revealed: More Details of Brumby's Secret Contract Alice at the Tea Party

For the past four years the State Government has shown that it is determined to keep the financial details of its Kew Development deal with Walker Corporation secret.

In December 2008 the Victorian Parliament finally lost patience with the Brumby Government's secrecy, and the upper house of review unanimously referred
the Walker Corporation Contract to the Victorian Ombudsman. At the time of writing, the Ombudsman's investigation into the Main Drive Kew tender process is still continuing.

Last year, the Government again failed to respond to the Report of the of the Upper House Inquiry into Public Land Development. The Parliamentary Inquiry had found that the Walker Corporation Development had "not been in the broader public interest."

This year, the
State Government has continued to dodge questions in Parliament about its 'Main Drive Kew' deal with Walker Corporation.

Last month, hard questions from  Boroondara Council about the
State Government/Walker Corporation  housing estate plans  also went unanswered.

Boroondara Council had found that not all was what it seemed in
Walker's Planning Permit Applications. The Stage 3A Application Plans were not in accordance with the approved master plan  for the site (WDPK 2007).

 The Council told Heritage Victoria that
:

The proposed development is not in accordance with the approved Walker
Development Plan dated November 2007. It would appear that the plans have
been modified, that being in relation to the proposed road layout and network and
the type of dwellings abutting the heritage core. Furthermore, it appears that the
open space areas have been reduced in size as a result of the modifications.
Concerns are raised in relation to any reduction in open space as a result of
development or road networks.

However,  the Government's CPS today reveals that not only had the plans for Stage 3A and the Heritage Core indeed been modified at least five months before Boroondara Council were asked to comment on them, but that Walker Corporation appears to have had a secret contract with the
Government signed on 28 August 2009 to prove it !

Indeed not only had the Kew site layout in the individual staging plans been modified, but the Main Drive Kew Development master plan for the whole 27 hectares of the site - the 'missing master plan' that Boroondara was so concerned about in March 2010, had also already been modified too.

As in the Windsor Hotel email scandal, it appears that despite all of the Government's rhetoric about "planning processes" and "public consultation", the reality of the Government's decision making processes at Kew Cottages is still  simply to, "shoot first, and ask questions later ! "

The Government's first shot on Stage 3A and the Heritage Core appears to have been  fired on 28 August  2009 when they changed the Main Drive Kew - Staging Plan and Masterplan buried deep in the 2006 Walker Corporation Kew Development Agreement.

The first question they decided not to ask was, "Does the new plan breach the 30% open space rule ?"

Secret
                                                      Masterplan
                                                      28-Aug'09

The Secretly Modified Masterplan
Now, in April 2010, we finally learn that the Government actually agreed to this new 'Masterplan'  in an amendment to the Walker Contract made over six months ago in August 2009.


Source Documents
  1. Walker Part 1 Deed of Variation signed 28 August 2009
  2. Walker Part 2 Deed of Variation signed 28 August 2009
  3. Walker Part 3 Deed of Variation signed 28 August 2009
  4. Walker Part 4 Deed of Variation signed 28 August 2009

It now appears, therefore,  that the whole Stage 3A Public Consultation process started by Heritage Victoria in February 2010 has been little more than a charade !

The similarities to the Windsor Hotel Public Consultation Scandal are remarkable. In the case of the Windsor Development email the Government strategy outlined was to use a period of public consultation to camouflage a predetermined outcome.

In the case of the Kew Development it appears the Government decided to go one better - shoot first and ask questions later. 

First they signed the Deed of Variation, with Walker Corporation
then they started consulting the public..

So the 'secret outcome' here at Kew actually preceded the consultation by 5 five months !


What a sham ...



Thursday 1st April 2010



Fund-raising Cartoon Tandgerg
Labor Party scraps fund-raising event

Read More >>


March 2010
A bad month for Madden
9 months to the State Election

Calendar March
                                        2010
Boroodara's Battle of the Bulge..
Act1   Stage 1
by 4Kew

The Brumby Government has now built 75 houses here.
On land that it already owned...
Sold 55 of them at an average sale price of $1.4 million each
And still managed to loose $17 million dollars !
Go figure >>

Sunday 28th March 2010 Fact and  Opinion..

Parliament of Victoria  "Help keep the bastards honest... "

The Victorian Opposition Liberal and National Parties ask for our views on the
Members of Parliament (Standards) Bill.

The Bill  states that Members should demonstrate in carrying out their public duties the values of serving the public interest, upholding democracy, integrity, accountability, respect for diversity, diligence and leadership...

On 4 December 2008 the Legislative Assembly gave the Law Reform Committee terms of reference to conduct a review of the Members of Parliament (Register of Interests) Act 1978. The Act sets out a code of conduct for members of the Victorian Parliament. It also requires them to disclose certain financial and other interests that have the potential to conflict with their public duties, such as land and shareholdings, in a register.

The Victorian Parliament's Law Reform Committee's report and submissions and transcripts of evidence are online here


Friday 26th March 2010 Fact and  Opinion..

Parliament of Victoria  "Help keep the bastards honest... "


"From the Windsor Hotel to Kew Cottages - Its All in the Email "

We make our submission 
to the Standing Committee on Finance and Public Administration's Inquiry into Victorian Government Decision Making, Consultation and Approval Processes
... aka "The Windsor Hotel Inquiry"

We request the Committee urgently investigate new evidence of misleading and deceptive conduct in the Victorian Government decision making, consultation, and approval processes for the controversial Kew Cottages Development.

"... The Kew Cottages matter is especially significant for your current inquiry because of a number of apparent similarities  to the Windsor Hotel Email Affair including:

- A Government Media Plan designed to deceive and mislead the public;
- Planning and Heritage Approvals justified by a sham public consultation process;
- The direct and indirect involvement of the Minister for Planning in the latter processes... "



Friday 26th March 2010Bill Shorten
A reply to our June 2009 request for urgent assistance, finally arrives from Bill Shorten's Senior Adviser...  With apologies for the delay. It has only taken about ten months.. That puts it politically in the same time delay warp that we have  come to expect from both the Bracks and Brumby Governments over the past 7 years of the Kew Cottages affair.

Former Victorian Planning Minister, Rob Hull's, Senior Adviser also used to apologise to us for such long delays. He agreed that a six month delay in responding to a community group really was unprofessional. However, his Ministerial predecessor, Mary Delahunty was less forthcoming.  She appeared to simply file incoming Kew Cottages correspondence in a circular filing cabinet, and made no response at all.

However, after Mr. Shorten's recent phone call, it is particularly disappointing that his Adviser appears to have now somehow completely forgotten what our original June  2009 request for Commonwealth assistance was... ie that
Mr Shorten should
:

"subject Mr. Madden's role in the unreasonable and
unnecessary Stage 6 demolition of purpose built disability facilities to a very detailed scrutiny..."


Thursday25th March 2010

Parliament of
                                            Victoria  Madden's Madness @
                                              The Windsor  "Help keep the bastards honest... "  Dormouse in the Teapot
@
The Mad Hatter's Tea Party

Windsor Hotel
                                        Proposal

THE RALLY TO SAVE THE WINDSOR - SAVE OUR CITY - SAVE OUR HERITAGE

Time: 1 pm, Thursday 25 March
Venue: Steps of Parliament, Spring Street
Hundreds attend rally on Thursday 25 March 1pm outside Parliament House, Spring Street. Speakers included Trust CEO Martin Purslow and the Hon Bob Brown. Rod Quantock made a wonderful MC, taking us through the story of the mad hatters tea party application for a planning permit. Alice was the bewildered public,
the sleepyDormouse was Heritage Victoria, the March HarerepresentedMr Brumby, and theHatter played Mr Madden.

The Mad
                                          Hatter's Tea Party
 
Read More >>



Thursday 18th March 2010
 
Herald Sun
Justin Madden tells tall storeys, stumbles over Windsor project
Matt Johnston

IF you approve a $260 million development you should probably know how high it will be.

Victoria's bungling Planning Minister Justin Madden verbally added 11 floors to the controversial Windsor redevelopment before he was corrected twice by his new media adviser.

Mr Madden stumbled after being grilled about the decision to give the Windsor project the nod, allowing developers to build a 91m tower at the back of the historic hotel.
.. Read More >>



Friday 12th March 2010


Parliament of
                                            Victoria  "Help keep the bastards honest... "

Planning Minister Justin Madden gatecrashes inquiry into Windsor Hotel email scandal demanding to be heard
Justin Madden interviewed
                                        at Parliament House
Justin Madden holds court yesterday

Stephen McMahon, AAP

PLANNING Minister Justin Madden sent parliament into high drama with an angry shouting match and showdown with opponents in a committee hearing.  Read More >>



Friday 12th March 2010
Heritage VictoriaThe Heritage Club Cookbook.   Kew Cottages STAGE 3A

Madden's Master Plan Missing in Action @ Kew Cottages

Boroondara Council warns Heritage Victoria and the Department of Planning  that critical ingredients are missing from Walker's Permit Application for Stage 3A.


"... The documentation should include a whole site plan or a master plan that simply
includes all existing, proposed and future stages to show how the current stage
will fit within the bigger picture and context.

"This is a basic requirement for any
development if a comprehensive assessment and informed opinion is sought.



"The landscape plan concept is the only documentation that gives a reference to
some of the surrounding buildings and spaces and it hardly has any details. The
plan refers to a set of heritage conservation plans and approval that dates back
to 2008, which obviously justifies the proposed works to the heritage buildings. .

"However, how this relates  to the surrounding development is unclear. A
reference is made on the plan to the Walker Development Plan, which should
have accompanied the documentation for this stage, and any other stage, to
clearly demonstrate the manner in which these works will fit within the broader
area plan.... "

Boroondara Council letter to Heritage Victoria 12-Mar'10

Whoops... here we go again. Missing Masterplans have become a regular feature of the Kew Development over the years. First you see them, then they disappear for a while, usually re-emerging like proverbial rabbits out of the conjurer's hat - but each time wearing more developer friendly clothing once the Minister has waved his magic wand...

The first master plan to go was the Urban Design Framework approved by Boroondara Council way back in August 2003. That only lasted a few weeks. Then the Minister for Planning waved her wand, and the master plan was suddenly transformed... dressed with bulldozers, chain saws, and 20% more concrete ...


What will Madden come up with next ?



Thursday 11th March 2010

Opposition calls on Brumby to "Stop Kew Cottages Development"
Andrew McIntosh,
                                        MP
 Andrew McIntosh MP
 
Opposition Spokesman for Integrity of Government, Mr. Andrew McIntosh today called on the Premier of Victoria, John Brumby, to stop the Kew Cottages development until the Premier can provide the promised financial benefits to services for the disabled.Read More >>



Thursday 11th March 2010 Fact and  Opinion..

Heritage VictoriaThe Heritage Club Cookbook.   Kew Cottages STAGE 3A

What's that smell ?


We lodge "More Sham Consultation ?"- our OBJECTION TO KEW COTTAGES HERITAGE PERMIT APPLICATION P15474: Alice at the Tea Party
Stage 3 Area. VHR2073 as  Advertised 17.2.2010




Wednesday 10th March 2010

Herald Sun

No confidence motion against Planning Minister Justin Madden under way

Justin Madden
Victorian government planning minister Justin Madden speaks to the media outside the Treasury building.
Picture: Gary Richardson Source: Herald Sun


Catherine Best writes.

STATE planning Minister Justin Madden "cooked up'' a strategy to "subvert and corrupt'' the planning process for a major hotel redevelopment, the opposition has claimed in parliament.
Read More >>



Wednesday 3rd March 2010 Fact and  Opinion..

Heritage VictoriaThe Heritage Club Cookbook.   Kew Cottages STAGE 3A

Rule 3 - Test the Smoke Alarm 


We lodge our PRELIMINARY OBJECTION TO KEW COTTAGES HERITAGE PERMIT APPLICATION P15474: Stage 3 Area. VHR2073 Advertised 17.2.2010



February 2010

Not a good month for Justin Madden
10 months to the State Election

Calendar February 2010
Middle Yarra Plan including Kew Cottages 1990
The Thin End of the Yarra Green Wedge
Conveniently forgotten by the Brumby Government ?
But who forgot to tell the Governor General ?

 
Thursday 25th February 2010

Brumby's Hollowman?
Justin Madden

Justin Madden, Victorian Minister for Planning.

Government email to ABC News reveals plans to deceive.. 

Herald-Sun-logo.gif  Stephen McMahon writes
BRUMBY government spin doctors have been caught out with plans to engage in contrived public consultations, setting up photo-opportunities to boost ministers' local profile and leaking stories to the media.. ( Read More >>)



Tuesday 23rd February 2010
Justin Madden washes his hands of Kew Cottages

Parliament of Victoria

Parliament of
                            VictoriaVICHANSARD



Title    Kew Residential Services: site development
House    COUNCIL
Activity    Questions without Notice
Members    KAVANAGH
Date    23 February 2010
Page   341
Peter KavanaghQ. Mr KAVANAGH (Western Victoria) --
My question is for the Minister for Planning, and it relates to evidence he gave to the Select Committee on Public Land Development about the development of the Kew Cottages site. As the minister knows, stage 1 of the ongoing Kew Residential Services project was expected to return a profit of over $6 million. However, the project liaison group of the developer, Walker Corporation, announced quite some time ago that the project will actually lose more than $17 million on stage 1. I ask the minister how this happened and how in particular the government manages to lose money just by selling land that it already owns?


Justin MaddenA. Hon. J. M. MADDEN (Minister for Planning) --
I will be frank: I find this quite a bizarre question, because I am the planning authority, and the planning authority is not in the business of providing for or making money for developers in any context. My role is to be the relevant planning authority in terms of decision making on a strategic basis or the controls on a particular site. On the question, if there is an issue about the project, that should be directed to the developer, who has made money or lost money. I could not give the member an answer on that, because I make my decisions in relation to my planning authority or I monitor, through the advice of my department, whether those planning controls have been complied with. I receive that advice, but whether a developer makes money on a project is not necessarily something I follow closely or identify with. What is of particular importance here is that the land was disposed of, there is a developer on the site and the developer will either make money or lose money on the basis of whether they have chosen their market in the right way and whether they have developed that site according to the market demand... (Read More >> )



Tuesday 23rd February 2010

Mayne
                                  Report

... My greatest fear is that the developer of Eastern Golf will simply make a big donation to the Labor Party - just like the six-figure sum Graham Richardson and Sydney billionaire Lang Walker handed over as the "called in" Kew Cottages battle raged - and then us Manningham councillors will be completely side-lined by Spring Street....
Read More >> Mannigham Matters



Wednesday 17th February 2010 Fact and  Opinion..

Heritage VictoriaThe Heritage Club Cookbook.   Kew Cottages STAGE 3A

Rule 2 Test the Ingredients..

Problems with the proposed Stage 3A ingredients  include:

Boundary Problems.
This is significant because mistakes involving inaccurate boundaries in Stage 1 led to serious breaches of the Heritage Act, and damage to 300 year old Heritage listed River Red Gums.


Building Problems.
This is significant because the nature and form of the buildings proposed in 2005 formed the basis of the Government's Permit Application  for demolition of the existing Heritage listed Cottage (B2, House Hostel).

Road Problems.
This is significant because changes to the proposed road system will have potential heritage impacts on the balance of the whole site (ie: not just Stage 3A).  However, this  problem appears to have been totally ignored.

Public Open Space Problems.
  • The proposed Public Open Space does not appear to accurately reflect the Approved Heritage Permit P9639 Drawings (2005);
  • The Public Open Space shown does not appear to accurately reflect the Approved Development Plan (2007)
This is significant because a reduction in the Stage 3A Public Open Space may result in both undesirable Heritage impacts and breaches to the Development Plan's requirements (eg: breaching the requirement for a minimum of 30% of the whole site to be retained as Public Open Space)

Transparency Problems.

The Heritage Impact Statement  lacks transparency in both content and form:
  • It fails to address the potentially site wide heritage implications of the new Stage 3A proposals (changes to previously approved boundaries, roads, buildings, etc);
  • It fails to properly take into account the author's expert view that the site is not only of State Significance, but also of 'potentially National Heritage Significance';
  • It fails to properly reveal and take account of the author's potential conflict of interest in her dual roles as both:
    • a paid private consultant, acting for the Kew Cottages developer, Walker Corporation, and
    • a publicly appointed  Member of the Victorian Heritage Council, appointed by the Governor-in-Council on the advice of the Minister for Planning Mr. Justin Madden.
This is significant because it lay open the possibility that the Stage 3A Heritage Impact Statement, as advertised,  may not in fact present a full and frank expression of the author's unexpurgated views on the totality of the potential Heritage Impact involved.


If in doubt read the Instructions first !


"... This Application Form is a legal document. This Application Form MUST be completed and read in conjunction with the associated document “Instructions for Completing an ‘Application for a Permit To Carry out Works or Activities to a Heritage Place or Object’. By completing this Application Form all signatories are taken to have read the associated document and understood the manner in which the information in this Application Form may be used in the future.

".ALL SECTIONS MUST BE COMPLETED. Incomplete applications will be returned to the Applicant and result in delay. It is the Applicant’s responsibility to ensure that the full and correct information is provided.... (Read More >> )

The Heritage Victoria Instruction Sheet for Applicants.


Wednesday 17th February 2010
Fact and  Opinion..
Heritage VictoriaThe Heritage Club Cookbook.  Kew Cottages STAGE 3A

Rule 1 - Read the Recipe..

Unfortunately, we cannot make a lot of sense out of the Application Plans and Maps. The Maps 'Issued for Town Planning' cannot even get the Kew Postcode (3101) right. They say the Kew Postcode is 3184. However, Australia Post reckon 3184 is actually Elwood, 13 km south of Kew. It's a bad omen..

The Stage 3A Definition in the Design Response Drawing ( AR03A.21.01) is even more weird. It says, "Stage 3A is bounded by Park Avenue on the south.... However, the Design Response Map Key itself shows Park Avenue on the east and Stage 3A bounded by Main Drive on the south...Design Respose
                                            Map Key

Maybe the Stage 3A southern boundary on the Tree Protection Map will make more sense ? There are over a dozen trees shown as being retained south of Lot 125.
No. That boundary looks different again !Stage 3A Tree
                                            Protection Plan Sth
                                            Boundary

So be prepared for a lot of smoke in your kitchen if you try to cook the P15474 Heritage Permit Application recipe at home.





Wednesday 17th February 2010
Kew Cottages STAGE 3A

The Age Public Notice

Heritage VictoriaAdvertised Permit Applications
Cape Otway Lighthouse


VHR2073 Former Kew Cottages Princess Street Kew

Permit application P15474 to develop the stage 3 area to include the development of 12 dwellings and subdivision of each into a separate lot, restoration and use of Building B6 for use as a kiosk/café, restoration and use of building B1 for use as medical consulting rooms, restoration and use of building B3 as a community centre and construction of a new building for use as a gymnasium/pool, removal of heritage registered trees and associated works (including pathways/landscape works)

Submissions due by 5pm Wednesday 3 March 2010

Some people may experience difficulty opening some of the documents below due to their heavy size. A copy of all of these documents may be viewed at the offices of Heritage Victoria at level 4 55 Collins Street Melbourne between the hours of 9.30am and 5pm.
Heritage Impact Statement (709kb)
Ground level plan (2440kb)
Design response (5242kb)
Heritage core cafe (865kb)
Heritage core community centre (6304kb)
Heritage core health-wellbeing centre (265kb)
Landscape plan (1215kb)
shadow diagrams 9am (5742kb)
shadow diagrams 12pm (5730kb)
shadow diagrams 3pm (5775kb)
Lot 125 to Lot 128 (879kb)
Lot 129 to Lot 132 (1541kb)
Lot 133 to Lot 136 (1504kb)
streetscapes and sections (1044kb)
Stage 3A tree protection plan (3763kb)




Tuesday 16th February 2010




Read the ABC-TV  'Breaking Point' Forum
ABC-TV

Forum Extracts...

Discussion: funding responsibilities     Page 1


Author    tim09
Date/Time    15 Feb 2010 9:51:39pm
Subject    >>Re: funding responsibilities
Thanks Michael, my beef is with the substandard service provision for respite provided by the states. I suppose, regardless of federal funding support, the states are the service provider and the buck must stop with them. Country Victoria is a disgrace. In the past 10 years I have met with 6 ministers and the premier for mere lip service...

...Discussion: What has DHS done with all the money?     Page 1

Author    Renatha ®
Date/Time    15 Feb 2010 9:42:01pm
Subject    What has DHS done with all the money?

I have worked in the UK as a social worker and now work in Victoria as a case manager in aged and disability.

More recently I worked as a facilitator of ISP packages for DHS.

This program brought out what I have noticed to be a big difference between the UK and Aus - there is was assessment of need, no waiting lists for care and no huge bureaucracy in the middle of the federal and local government that sucks up all the money with an ever burgeoning of jobs at the state level, and ever decreasing resources for the people at the front line - people with disabilities, the aged, carers - both family and professional. In aged care there are a plethora of packages, such a complexity that I was advised, "Do not attempt to understand it all in this lifetime."

My main subject - Kevin Rudd some time ago released millions to assist carers with respite. This was administered by Centrelink for about a month, then went into the huge vacuum of DHS. Several service providers geared up ready to give carers respite hours in the first round. All well and good. As far as I understand, we're all waiting for the promised second round. I doubt it'll ever come. More DHS jobs have appeared for bureaucrats.

It was interesting that Victoria is one of the states that have 0 accommodation places from the money Kevin Rudd released, as appeared on the Four Corners program. The system just gets more complex, more money is wasted, more professionals burn out, and the actual people who need the help - people with disabilities, aged and carers?



Author    mokemoke
Date/Time    15 Feb 2010 9:48:39pm
Subject    >Re: What has DHS done with all the money?
Managers, managers, managers. All highly paid with company cars. At the level where people actually care for people nothing but service and hours cut daily.
  
 
Author    Paul Collier
Date/Time    15 Feb 2010 10:10:51pm
Subject    >Re: What has DHS done with all the money?
Spot on !!!
  
 
Author    mary
Date/Time    15 Feb 2010 10:03:46pm
Subject    >>Re: What has DHS done with all the money?
I agree. DHS is top heavy with managers, too interested in keeping their jobs (and salaries) than doing their job of looking after people with disabilities. I do not know how they sleep at night...

Read More >>


ABC-TV




Monday 15th February 2010



Four Corners:
                                Breaking Point Broadcast 15-Feb'10

Breaking Point
ABC-TV Program Page inc Video


Program Transcript
Read the program transcript for Wendy Carlisle's report Breaking Point, first broadcast 15 February 2010.

Reporter: Wendy Carlisle


...... BRUCE BONYHADY, ADVISORY PANEL ON DISABILITY SUPPORT SCHEME: It doesn't matter where you look across the sector, across the states of Australia the system is broken.

BILL SHORTEN, PARLIAMENTARY SECRETARY FOR DISABILITIES (at National Press Club): I make no apology for seeing disability as an issue not purely of resource allocation but of basic civil rights. I believe it is the last frontier of practical civil rights in this count...

WENDY CARLISLE (to Bill Shorten): What do you say to the ageing carers while they're waiting maybe the six, seven years for maybe the big reform to come through?

BILL SHORTEN: First of all I'd say we've increased the funding to the states. That's a matter of record. And we've increased the pension. That's a matter of record. And that's useful stuff and I'm sure many of them would concede that.

But what I would fundamentally say is that we cannot say that we're fully doing our job to you until you're removed to that anxiety of what will happen to your adult child.

So at this stage I can't blow smoke in their face and say listen, it's all going to be fine, because we don't know that.

All I can say to them is that I'm quite dedicated to ensuring that we do have a national disability insurance scheme in some form which will relieve them of that burden.

KEVIN RUDD, PRIME MINISTER (at NSW Labor State Conference, 2008): She spoke about the fear that so many older carers have across the country, their concern for what happens to their disabled children once they are no longer able to provide the support that they have offered through a lifetime...

WENDY CARLISLE: In May 2008 the Prime Minister announced a special $100 million housing fund for people like Anne McDonald, Robbie Jones, and his friends.

KEVIN RUDD (at NSW Labor State Conference, 2008): We don't pretend to have a total solution to this problem. But it's time we began to turn the corner.

We will commit a further $100 million in the budget in immediate new capital funding for supported accommodation for people with a disability.

BILL SHORTEN: We gave $100 million. The Prime Minister came up with that initiative after listening to some carers. The Prime Minister and Jenny Macklin came up with that initiative after talking with carers in Western Sydney.

It was for 300 places. We understand that 68 places are now being established from the reporting to the state. We give the money to the states.

Rudd up sot "we do not pretend to have a total solution to this problem, but it's time we turned the corner..."

WENDY CARLISLE: Four Corners has examined the fate of those funds and can confirm only 40 new beds across Australia; just seven in New South Wales, 19 in Queensland and 14 in Western Australia.

In nearly two years neither South Australia, the Northern Territory, the ACT, Tasmania, nor Victoria have provided one bed between them.


Read More from the Transcript   >>  or go to the ABC-TV FOUR CORNERS  program page: "Breaking Point" >>

ABC-TV



Monday 15th February 2010

Bill Shorten's Office emails the Kew Coalition...   I apologise for the delay in responding to your original email. I have asked our Department to consider your email as a matter of urgency and a response will be forthcoming in the near future...


Monday 15th February 2010

f

Projects built at the expense of community


Kenneth Davidson's article in The Age (p.11)

... The Brumby government appears most sleazy when it attempts to justify the handover of public land that morally belongs to the most disadvantaged groups in the community....

The redevelopment of the 27-hectare Kew Cottages site that displaced 400 intellectually disabled residents was justified on the grounds that they should be reintegrated into the community - a bogus argument that ignores the evidence that most prefer to be integrated with their peers rather than the general community who, in the main, reject them.

It was also a cruel argument because it ignored the needs of some 4000 disabled on the waiting list for institutional care and their increasingly desperate, ageing carers. Building more cluster housing on the Kew site offered the best hope of an increase in institutional care and a serious effort to reduce waiting lists.

Even worse, instead of making money for the government, the development has somehow lost $17 million from building and selling the first 55 up-market homes on one of the most valuable sites in Melbourne.

The Kew Cottages Coalition of parents and concerned citizens want the development stopped immediately, at least until the Ombudsman's inquiry into the fiasco is completed and its results published, hopefully before the election.

But this coalition is a tiny organisation with just a small bank deposit. It is up against powerful Sydney developer the Walker Corporation, which employs former Labor senator Graham Richardson as its government lobbyist. Between 1999 and 2007, the Walker Corporation donated $205,000 to the state ALP, $300,000 to the federal ALP and $300,000 to the Coalition parties. In Victoria, money talks.

Kenneth Davidson is a senior columnist.

kdavidson@dissent.com.au

 (Read More >> )
http://www.theage.com.au/opinion/politics/projects-built-at-expense-of-community-20100214-nzdn.html



Saturday 13th February 2010...Bill Shorten
A phone call from Bill Shorten MP ...  With apologies for the delay. A response to our June 2009 letter is on its way he says...




 
Thursday 11th February 2010...

Disability Care in Australia

In Canberra the Federal Government is  getting ready for yet another 'Public Inquiry' into Disability Care and Support...

In Sydney ABC-TV begins its National Television on air promotion for its Current affairs  FOUR CORNERS program "Breaking Point".


"The system of assistance for people with a disability in Australia is broken..."

says the ABC press Release

 ... Carers know it, charitable organisations know it and so do the governments.

Now the federal government says something must be done. It’s holding an Inquiry, with the intention of creating a new and fairer system.

It’s even considering a national disability insurance scheme. But will the system be reformed in time to save the families now at breaking point?
"



Here in the DHS Eastern Region of Melbourne there is a sense of deja vu - In Victoria we have already had many Inquiries.

The latest Victorian Parliamentary Inquiry found that the Victorian Government needs to invest further in respite options to support families to
continue in their caring role and to give people with a disability and/or mental illness the option to stay at home.

And yet on 18th  November 2008 within days of the latter Inquiry hearing first hand evidence of just how broken the system of assistance in Victoria really was,  the State Planning Minister. Mr. Justin Madden,  proceeded to quietly and secretly approve a demolition plan for the Kew Cottages community facilities for the disabled.

These were the same facilities that had already been referred to the Premier for review, by the Parliamentary Inquiry into Public Land Development (#397, p.121, 2008)

And then, on the day after Madden's demolition order,  having once again politely declined our long standing request to meet with her in order to discuss the future use of the Kew Cottages respite and recreation facilities,  the State Community Services Minister, Ms. Lisa Neville finally wrote back to say-



".. We have opted to develop locally available respite services which include a range of options
such as facility based (out of home) in-home and holiday respite. We have increased respite
funding in 2008-09 by $12.4m over 4 years. We have directed these supports to meeting the
needs of people in their local communities...

Kew 2008
Kew 2009



"As part of the staged redevelopment of the former Kew Residential Services site there will be

recreation facilities such as a small hydrotherapy pool, community rooms and rooms for
visiting health workers...

"The details are yet to be finalised ... "
             

Lisa Neville, Victorian Minister for Community Services
19 November 2008


Kew 2010 and counting...


Victoria - The Place To Be
 ?


"In a minute there is time for decisions and revisions which a minute will reverse..."
February 2010
The Wasteland  remains ...

So why did the Victorian Government shoot itself in the foot ?
In November 2008 there were 1358 people on the Urgent Waiting List for Supported Accommodation in Victoria.
In June 2009,
in the Eastern Region of Melbourne alone,  there were 118 Families on the Waiting List for Respite Care.
So why suddenly demolish the 60 Eastern Region Beds and Hamer Swimming Pool when they were still in such high demand for disabled Victorians ?
Why not build extra Disability Accommodation first ?


In May 2008 the Federal Government  had promised  $100 million extra funding for the States to spend on Disability Accommodation, so in June 2009 we wrote to Canberra asking them to intervene and help find some answers.

The Federal Parliamentary Secretary for Disability,  Bill Shorten, had previously expressed a desire to help. But when we asked him to intervene and find out why Victorian Planning Minister, Justin Madden had suddenly approved the demolition plan for the Intellectually Disabled's Swimming Pool, Medical Centre, and 60 Respite Beds, Bill Shorten had remained unusually silent.

We think his office may have 'lost the email'. So now with FOUR CORNERS  due to go to air in 4 days time we are sending  Bill Shorten  another copy of our questions....



Tuesday 9th February 2010 Fact and Opinion..Spooner's PPP Cartoon Not the Last
                            Supper
Heritage VictoriaThe Heritage Club Cookbook.  Kew Cottages STAGE 3
It is just one week since the Kew Public Meeting called on the Brumby Government to stop any further construction works on the Kew Cottages Public Land pending consideration of the Ombudsman's Report by both houses of State Parliament...

However, the Brumby MasterChef apparently has absolutely no intention of waiting for Parliament to help him drop the acidity in his mayonnaise...

The Government and Walker Corporation response comes in the form of an email from Brad Evans,
Walker Corporation's Planning Manager - Approvals Division,  to Ray Osborne, Operations Manager, Heritage Victoria,  enclosing an Application for a Heritage Permit to develop "the stage 3 area..."

... A separate Planning Permit application will also be lodged with DPT to run in parallel to this application." 
 
"Originals will be couriered today,
" says Mr. Evans.

We understand that there is no possibility of this Application being a purely Walker Corporation initiative.

 It is a condition of the Government Contract with  Walker Corporation that all Permit Applications to the Government must first be approved by the Government:

Walker KRS AgreementB3.1 Developer to obtain Planning Permits
(a) The parties agree that the Developer must make all necessary
applications for all Planning Permits and a further Demolition Permit as
required to undertake the Project in accordance with this Agreement
(including making all necessary applications, supplying all requested
information and prosecuting all applications with due diligence). The
Developer must obtain the consent of the State to the form and content
of any application for Planning Permit or, further Demolition Permit prior
to submission to the Planning Authority.


The High Status of the Stage 3 Area

According to the Main Drive, Kew Project Staging Plan approved by the Minister for Planning, Mr. Justin Madden,  in February 2008 the Stage 3Area now includes the Heritage Core Area with all of the remaining high-status buildings on the site - the Parents Retreat and Chapel,  built as the original Schoolhouse in 1887,  plus 4 State Heritage listed Cottages.


Stage 3  is subdivided into the three adjoining areas 3A, 3B, and 3C  shown below coloured in orange on the Government Staging Plan (Madden Masterplan 2007).

Project Staging Plan 2007




Heritage Victoria responds by directing Walker Corporation to advertise this Stage 3 Area Heritage Permit Application
in The Age, and the Progress Leader.

This direction is in accordance with
S.68 of the Heritage Act which says that if the Executive Director considers that the proposed works or activities 'may detrimentally effect that place', then he 'must cause notice of the application' to be published in a newspaper circulating generally in the area...

The Public Notices  advertising the Heritage Permit Application duly appear in the newspapers a week later, and also on the Heritage Victoria website.


However, there is no longer an equivalent requirement for the Minister for Planning, as the Responsible Planning Authority, to consult  the public on Walker Corporation and the Government's Stage 3 Planning Permit Application, since the Government canceled third-party appeal rights for Kew Cottages Planning Permits back in 2003 when the Minister suddenly seized control from Boroondara Council.




Kew Public Meeting
Tuesday 2nd February 2010

Calls on the Brumby Government to stop any further construction works on the Kew Cottages public land pending consideration of the Ombudsman's Report by both houses of State Parliament... (Follow via Twitter..)




Summary of
KCC
Presentation
(More..)

Motions carried



KEW COTTAGES COALITION INC. PRESENTS

Kew Cottages
and the
State Election

A MIDSUMMER NIGHT's

PUBLIC MEETING
MC

Rod Quantock, MC

Rod Quantock

Andrew
                                      McIntosh MP for Kew   John Lenders, ALP MLA
                                      Southern Metro  Jennifer Huppert, ALP MLA
                                      Southern Metro

Andrea Coote MLA Southern
                                      MetroDavid DavisSue Pennicuik, Greens MLA
                                      Southern Metro

All Local Members of State Parliament have been invited  inc:
Andrew McIntosh (Liberal) John Lenders (ALP)Jennifer Huppert (ALP)

Andrea Coote (Liberal),   David Davis  (Liberal, Chair. Public Land Inquiry) ,   Sue Pennicuik (Greens)


 7pm Tuesday 2nd February 2010

Phyllis Hore Room
Kew Civic Centre
Cnr Cotham Road and Civic Drive
KEW


Melways  Map 45 D6


The next instalment in one of Melbourne's most contentious Major Projects.

Topics for discussion:
  • How has the State of Victoria managed to loose 
      $17 million building and selling 55 houses in Kew ?
  • What will each of our local MP's do about protecting all of the remaining
    Kew Cottages
    Public Land if re-elected ?

  • Do our MP's support the Kew Coalition's Alternative Plan ?

  • How can the community help ?
       **
Follow kewcottages on Twitter

ALL WELCOME !  



January 2010
11 months to the State Election

Calendar January 2010

The Daily Telegraph
                                Sydney Australia

Sunday 31st January 2010

Graham Richardson & MP's to assist Corruption Probe
 


THE NSW Independent Commission Against Corruption has questioned NSW Premier Kristina Keneally and Environment Minister Frank Sartor over their connections with business associates of murdered Sydney standover man Michael McGurk.

ICAC sent a list of written questions to Ms Keneally and Mr Sartor ahead of its public hearings into the McGurk slaying, which begin tomorrow...

The investigation follows claims by Jim Byrnes, an acquaintance of McGurk, that tapings were made of alleged corrupt business dealings.

Among the witnesses called to appear before the inquiry is former Labor powerbroker Graham Richardson, who told a State parliamentary inquiry that he had heard part of the tape.

The inquiry, the first to be held under new ICAC boss David Ipp, will also examine statements alleged to have been made by McGurk about corrupt conduct by NSW public officials and the proposed re-zoning of property at Badgerys Creek.

Mr Richardson and Mr Byrnes are not suspected of any involvement in the McGurk shooting.




Herald Sun

Australia Day

Tuesday 26th January 2010


A CAMPAIGNER for better treatment for mentally ill young people is this year's Australian of the Year.

Youth psychiatrist Patrick McGorry, from Victoria, was named the winner at a ceremony in Canberra…
He runs the Orygen Youth Health service and is the director of Headspace, Australia's National Youth Mental Health Foundation....
Patrick McGorry

(Read More >> )
Newsletter January 2010

Download

Kew Cottages - Alternative Plan Update:
Family Support and Respite Care


The Kew Coalition's original Public Land Plan for Kew Cottages
was endorsed by the all party Parliamentary Inquiry into Public
Land Development. Our plan was based in part on the adaption
and re-use of some existing high quality disability facilities....

(Read More >>)
(PDF Print Version)
**
Follow kewcottages on Twitter


Monday 25th January 2010

Barbara Biggins with son Neil

Passing years, lack of options taking toll on ageing carers
SARAH-JANE COLLINS
January 25, 2010
 
Barbara Higgens with son Neil, who has been waiting for suitable supported housing for seven years. Photo: Angela Wylie
EVERY day Barbara Higgens helps her son Neil get dressed and ready for day care. She lays out his clothes, helps him brush his teeth and checks that he's cleaned under his arms.

(Read More >>)

Sunday 24th January 2010

Mr B and the A Team
State Politics Reporter at The Sunday Age Melissa FyfeMelissa Fyfe writes
Illustration Joyner
Illustration: Joyner

With Parliament resuming next week and an election looming later this year, we assess the performance of the Brumby cabinet....

THE A TEAM

John Brumby must be the envy of his interstate colleagues. ..... Not many people, particularly lawyers, like his strong-arm deputy, Rob Hulls, ... John Lenders, the self-confessed lover of spreadsheets, .... Meanwhile, Tim Pallas has gone from Steve Bracks' chief-of-staff to ministerial surprise packet, impressing industry with his can-do approach to roads, ports and major projects....

THE MINISTERS FOR STUFF-UPS AND INVISIBILITY

...Community Services Minister Lisa Neville is improving but someone must be held accountable for the crisis in child protection: almost 2200 at-risk children with no case workers and tragic pockets of regional neglect, as the Ombudsman found last year. Justin Madden is a good bloke and we wish him all the best with his new job explaining the Premier's ''respect agenda'' to the state's hoon-driving, binge-drinking, disaffected and anti-social youths. But where is the vision and policy cohesion in the planning portfolio? Efforts to charge today's land sellers for future infrastructure were a mess and now he seems to have put the urban fringe expansion on the backburner...

Melissa Fyfe is the state politics reporter for The Sunday Age. Her next column will be on the performance of the Opposition. You can follow her on twitter.com/melfyfe.

(Read More >> )



The Australian

Saturday 2nd January 2010

Cash-strapped Liberal Party faces uphill electoral battle

    Christian Kerr writes:
 
A CASH-STRAPPED Liberal Party faces an uphill battle as it seeks to fight and win four elections in the next 12 months.

South Australia and Tasmania go to the polls on March 20, a federal election is expected in August or September and Victorians vote on November 27...

(Read More >> )





2010
2010 Calendar

The story so far...

 In the beginning, way back in 1887,  Kew Cottages was Australia's  first 'Government Insurance Policy' for intellectually disabled kids and their families.

It offered asylum for the children on a piece of public land outside of the walls Willmere that was permanently reserved by an Act of Parliament for the intellectually disabled.

Today, Kew Cottages is like a "canary down a coal mine". Nearly half of the public land surrounding the cottages has been privatised and sold off by the Brumby and Bracks Governments.

There is a strong smell of corruption in the air. The State's anti corruption watchdog began investigating the Victorian Government's contract with NSW developer Walker Corporation a year ago in January 2009.

However, despite the investigation, and despite large and unexplained losses on the land sales, the Government has pushed ahead with the Main Drive Kew contract.


**
Follow kewcottages on Twitter



Sunday 20th December 2009

To preserve democracy, political donations must be limited
Josh Gordon
Josh Gordon
National political reporter for The Sunday Age

WHAT price democracy in Australia? As far as the broad mass of taxpayers are concerned, not that much, it seems. For the 2007 federal election, taxpayers chipped in about $49 million to help political parties run their campaigns, up from $10.3 million in 1987.

That might sound like a lot, but compared to public funding for elections in other countries, it's relatively small beer.

This is not to say Australian elections are cheap. In fact, the cost of funding them has been rocketing. Labor's spending rose by 116 per cent in real terms over the 20 years to 2004. Liberal spending surged 136 per cent.

Public funding makes up just 20 per cent of election spending in Australia. The rest comes from a morass of donations, membership and affiliation fees, investments and fund-raising.

Ask Premier John Brumby and he might say that this is all part of the democratic process. Is it not a basic freedom for individuals and companies to contribute to a political party if they wish?

But perhaps a more pertinent question is whether that ''basic freedom'' carries with it an even bigger cost: the erosion of the democratic process itself.

John Faulkner, previously special minister of state and now defence minister, warned in a green paper on electoral reform that ''spiralling costs'' of electioneering had created a campaigning ''arms race''.

This has heightened the danger that fund-raising pressures would open the door to donations that might attempt to buy access and influence...


(Read More >> )
The Daily Telegraph Sydney
                                  Australia

Tuesday 15th December 2009

Graham Richardson is still a figure of influence
 
  Graham
                                  Richardson
Irritated ... Graham Richardson during the inquiry / Pic: Alan Pryke Source: The Daily Telegraph

Gemma Jones and Angela Kamper write:

LABOR heavyweight Graham Richardson revealed himself as an unpaid policy adviser to Premier Kristina Keneally's Government yesterday.

In sometimes heated exchanges at a State Government committee related to the Michael McGurk affair, Mr Richardson was asked about his contact with the State Government's leadership plotters and his influence in Government ranks.

The former federal minister and now lobbyist, who said his car is his office, said he was in close contact with "puppeteers" Joe Tripodi and Eddie Obeid as well as controversial MP John Della Bosca in the lead-up to former premier Nathan Rees' downfall.

Since Ms Keneally became Premier earlier this month, Mr Richardson said he had been offering free advice on policy matters but he denied he influenced the leadership change...

(Read More >> )

ABC News
ABC Stateline Victoria

Friday 4th December 2009

Victoria's disabled housing 'in crisis'

Source:    Stateline Victoria
Published:    Friday, December 4, 2009 12:00 AEDT
Expires:    Thursday, March 4, 2010 12:00 AEDT

Numerous stories of heartache from angry families have been told to a parliamentary inquiry into housing for Victoria's disabled, including the case of an autistic man who was driven to self-harm after being locked in a small room for hours on end.

JOSEPHINE CAFAGNA, PRESENTER: A parliamentary inquiry into accommodation for disabled Victorians is expected to uncover a system in crisis. The committee has heard countless stories from families in despair; among them are Mark and Ellen Modra. They've watched their autistic son, Luke, deteriorate to the point of self-harm, after spending hours locked in a room with little more than a bed and a toilet. Erin Cassar reports.

(Read More >> )





ABC News

Tuesday 24th November 2009


Premier has 'open mind' on anti-corruption review

Elizabeth Proust
 
Elizabeth Proust will conduct the review.

Victorian Premier John Brumby says he has an open mind about a review into the performance of the State's anti-corruption bodies.

The review will examine organisations such as the Ombudsman, the Auditor-General, and the Office of Police Integrity.

The review will be led by Elizabeth Proust, a former secretary of the Department of Premier and Cabinet.



SMH

Monday 23rd November 2009

Richardson to face planning inquiry again

Brian Robins writes:

THE lobbyist and former federal MP Graham Richardson will be called to appear again before a state parliamentary inquiry.

The inquiry committee intends asking Parliament tomorrow for an extension that will allow it to call Mr Richardson for further questioning at a future date, with its deliberations to be wrapped up by late February.

The Coalition, the Greens and the Shooters Party all support the extension, while the Government does not intend to oppose it, which means it will win parliamentary approval.

The extension follows the Legislative Council committee looking into Badgerys Creek land dealings and planning decisions handing down its findings late last week, calling for ''substantial and urgent reform'' in the way lobbyists interact with Planning Department officials, along with an overhaul to political and election funding...



Tuesday 17th November 2009

Will Brumby Match NSW Ban on Developer Donations ?

Brian Walsh, President, Kew Cottages Coalition, today called on the Victorian Premier John Brumby to match the sweeping changes to State and Local election campaign funding announced by NSW Premier Nathan Rees on Saturday.

Mr. Rees told the ALP State Conference in Sydney that 'a clean slate' ban on all donations from developers would apply to all levels of the party in NSW.

Mr. Walsh said that all States and all political parties stood to gain by banning developer donations.

"This electoral reform is long overdue", Mr. Walsh said. " NSW has finally seen the writing on the wall. The public has had enough of the stench brought about by large political donations linked to Labor lobbyists like Graham Richardson, and contentious developments like Kew Cottages."

"Why has Victoria been dragging its feet for so long on this issue ? A national ban on developer donations is vital," Mr. Walsh said, otherwise the problem in Victoria and other States will just get worse."

"Unless Brumby acts quickly to  match the NSW ban on donations,  'dodgy developers' from NSW will be able to start using Victoria to help 'ride around' the ban they now face in their home State," Mr. Walsh said.



Monday 16th November 2009


Brumby runs a Labor Government?

If so, it's in name only

Senior columnist at The Age Kenneth Davidsonwrites

The funding of two hospitals aids the wealthy as social policy withers.

READERS of this column are well aware that I believe that the Brumby Government is, at the very least, hopelessly incompetent when it comes to core issues such as water, public transport and Melbourne planning and I spell out detailed reasons for these conclusions. These days the people I upset most tend to be Labor's rusted-on ''true believers''.

At a recent conference on the subject of neo-liberalism organised by the left-wing Search Foundation I argued that the global financial crisis had totally discredited the efficient financial markets hypothesis on which neo-liberalism was built, but, as a political force justifying government hand-outs to the rich and powerful, it was alive and well.

I gave some examples by reference to Victoria.

At the conference Race Mathews - whom I greatly respect for a long, principled career associated with the Labor Party (as minister in the Cain government and the driving force behind the Fabian Society) - shouted at me that whatever the Brumby Government was doing, it wasn't corrupt...
Read More >>

SMH

Sunday 15th November 2009
Rees sets own agenda

 
Shake-up ... Nathan Rees and wife Stacey at the conference yesterday. Photo: Jon Reid

LEESHA MCKENNY AND LISA CARTY write


POLITICAL donations from developers will be banned in NSW under sweeping changes to campaign funding announced by Premier Nathan Rees yesterday.

And lobbyists will be stopped from meeting departmental officials in coffee shops, with all meetings to be held on official premises or on the sites of proposed developments.

Mr Rees said lobbyists had a role to play, but contacts with government should be formal, with full minutes of meetings taken and retained...
Read More >>


Tuesday 3rd November 2009

$10,000 to sit next to Brumby


ROYCE MILLAR AND PAUL AUSTIN write

PREMIER John Brumby is under mounting pressure over companies giving cash to the ALP while seeking access to Victoria's coal reserves, with the revelation that the main sponsor of a party fundraiser last week was a high-profile coal entrepreneur.

Latrobe Fertilisers, a company proposing to turn coal into fertiliser, is pushing the Government to open Gippsland's coal fields for non-energy use. The company was the ''Gold'' sponsor of last Thursday's annual dinner for ALP fund-raising arm Progressive Business.

The company's chairman, Allan Blood, sat at Mr Brumby's side for much of the evening in return for contributing $10,000 to the ALP.

Mr Brumby refuses to comment on such discussions...

Read More >>


Friday 16th October 2009

Disability watchdog hits out

PAUL AUSTIN writes

A disabled and mentally ill woman has been locked up against her will in inappropriate accommodation for 21 years under state care, and nine other people with ''dual disabilities'' have suffered the same fate for at least the past eight years.

Their cases have been condemned as a breach of the Victorian Government's human rights charter in a report to Parliament by the state's disability watchdog.

The Office of the Public Advocate's report, based on the findings of more than 5000 visits to psychiatric facilities and other state-monitored care homes last year, paints a picture of residents living in fear in sub-standard accommodation, overseen by overworked and sometimes poorly trained staff.

It calls on the Government to dramatically boost funding for better quality accommodation and care for thousands of weak and disabled Victorians.

Public Advocate Colleen Pearce told The Age last night: ''We are failing our most vulnerable citizens when the Government does not provide adequate housing and social support.''...

Read More >>


SMH

Tuesday 6th October 2009


Sartor slams Keneally over lobbyist visits



ANDREW CLENNELL AND MATTHEW MOORE write


Frank Sartor.


THE former planning minister Frank Sartor has broken Government ranks to condemn the fact that the Planning Department head Sam Haddad was able to be lobbied by the Labor identity Graham Richardson without his minister, Kristina Keneally, knowing or caring.

Mr Sartor has called for a change in the way the Government deals with lobbyists following revelations that Mr Richardson met Mr Haddad on at least four occasions in the past year...


Read More >>



SMH

Tuesday 15th September 2009



Chilling words from The Fixer

Andrew Clennell writes


The words from Graham Richardson in February were almost chilling. They came down the phone with arrogance and defiance.

It was a conversation The Sydney Morning Herald was having with Richo about him having to step out of the shadows after Premier Nathan Rees had set up a lobbyist register.

The former senator and Labor general secretary registered at the time as a lobbyist for Medich Property Holdings, Walker Group, Hardie Holdings, Bradcorp and Berowra Waters Marina P/L.

Richardson was as he always is: highly articulate, intelligent, and without any care or sufferance for a meddlesome journalist who might want to query his dealings with government or the Labor party.

"I don't have to talk to ministers, I can get things done through other means," Mr Richardson said.

"Often it's better not to talk to them [ministers] because if I do, people like you want to make something of it," he said.
Read More >>


The Age
State Politics

Sunday 2nd August 2009

Why Brumby should take the Bligh road to integrity



Melissa Fyfe writes


Moves by Queensland's Premier to fight corruption put her ahead of John Brumby.

WHEN former high-flying Queensland minister Gordon Nuttall was jailed recently, Anna Bligh did a little soul searching. The corruption that darkened the sunshine state in the Joh Bjelke-Petersen years was long gone, and yet here was a former minister taking secret commissions from businessmen. Had all the reforms of the Fitzgerald corruption inquiry meant nothing?...
>>>

Thursday 4th June 2009

Australia's State of Disgrace


Why Justin Madden was censured by the Victorian Parliament

Minor Political Parties - the New Conscience of Spring Street ?

Large political parties in Australia have two things in common, no matter their political persuasion, they have all been accused of both branch stacking, and  of accepting dodgy political donations.

But after Brimbank, both the Greens, and the DLP, the two minor parties on the cross benches in the Victorian Parliament have had enough of the damage associated with such practices.

Brian Walsh, President Kew Cottage Coalition  interviews Peter Kavanagh, DLP about why he supported the 3-Jun'09 'No Confidence Motion' against Planning Minister, Justin Madden - the first such censure of a Victorian State Minister in 20 years.

Dur: 4:39
==

Kew Cottages future - Peter Kavanagh MP from Kew Cottages Coalition on Vimeo.

==


Interview - Peter Kavanagh MP from Kew Cottages Coalition on Vimeo.




Victoria

Australia's State of Disgrace ?


Cr Phillip Healey,
                                            Boroondara Council

"The Disability Sector has paid too high a price for what has happened here at Kew

... it is an absolute disgrace in my view...
"

Cr. Phillip Healey, Boroondara Council

View Planning Backlash Video >>>
http://www.vimeo.com/4513554
Courtesy: marvellousmelbourne.org



Progress Leader
Tuesday 19th May 2009
Budget
                                          ignores carers plight

Cassie Maher writes:
"The pleas of families, politicians and charities for more supported accommodation places in Boroondara fell on deaf ears in the State Government...  >>



The Age
State Politics
Sunday 10th May 2009

Exposing the underbelly:
Victorian Ombudsman George Brouwer has released a scathing report about Brimbank City Council

The bad and the
                                            ugly
Brimbank: The bad and the ugly
Michael Bachelard writes...

"... In 2006 when the bloc was controlled by Theo Theophanous, and was still holding together, he could march into Brack's office after that year's election and say that he represented the Right faction's view about who should be a minister.

He got his way... Steve Bracks and John Brumby were both aligned to this Labor Unity faction ... >>>









Progress Leader
Tuesday 28th April 2009
More cash needed for
                                            disabled


Cassie Maher writes:
...The Kew Cottages Parents Association, which supports relatives of people living in Department of Human Services community residential units, has called for a national standard for supported accommodation.

       Executive officer Louise Godwin said in her submission that fluctuations across regions meant some residents were missing out. She said that a man in a community residential unit died ``shortly after'' unsuccessful attempts were made to get him appropriate care support the department allegedly said it could not afford. A coroner's inquiry was underway, Ms Godwin said... >>>



Progress Leader
Tuesday 31st March 2009


Demolition Outrage, Progress
                                  Leader



Cassie Maher writes:
BOROONDARA councillors are outraged that buildings they proposed be used to house bushfire survivors at Kew Cottages have been demolished.

The Hamer Centre and hydrotherapy pool were bulldozed by developer Walker Corporation with approval by Major Projects Victoria (MPV) and Heritage Victoria on Thursday, March 19.


State Government spokesman Chris Owner said MPV received approval from the Department of Human Services that the pool was not being used and was not required.

He added under the Planning and Environment Act 1987, Mr Pallas could not intervene where demolition permits had been issued.


Walker Corporation declined to comment.

**********
Kew Community Facilities Questions.

Given Clause B15 of the Walker KRS Development Agreement (see below*)

Question 1.
Is it now too expensive for DHS to provide its disabled residents with hydrotherapy ?

Question 2.
If the hydrotherapy pool was not being used, as is now claimed by Major Projects Victoria (MPV) and DHS, what "equivalent alternative facilities" have been provided for the intellectually disabled residents, and at whose cost  ?

Question 3.
What steps has the Minister for Major Projects, Mr. Pallas taken to ensure that Walker Corporation has fully complied with their contractual obligation to
provide:
    • ... at the Developer's  cost access to equivalent alternative facilities to the hydrotherapy pool so  that KRS Residents have access to a hydrotherapy pool at all times ?  (Clause B.15)



*Extract from KRS Development Agreement 27-Oct'06 (p.94)

B15 Community Facilities

B1 5.1 Hydrotherapy pool
(a) Subject to paragraph (b) the Developer must ensure that there is
continuous access to the hydrotherapy pool at all times during the
Construction Works until an alternative hydrotherapy pool is available as
part of the Recreation Centre.
(b) If the Construction Works result in the hydrotherapy pool being
unavailable for use prior to completion of the Recreation Centre, the
Developer must provide to the satisfaction of the State at the Developer's
cost access to equivalent alternative facilities to the hydrotherapy pool so
that KRS Residents have access to a hydrotherapy pool at all times.

See:


Department of Infrastructure
  Major Projects Victoria
    Contract Details
    Contract No        3669
    Title        Kew Residential Services Development Agreement
    Type of Contract        Construction contracts
    Total Estimated Cost        $60,000,000.00
    Start Date        27-October-2006
    Expiry Date        26-October-2014
    Status        Open
    Category        Building, Construction and Maintenance Services






Thursday 19th March 2009
Brumby The Wrecker Was Here..
Brumby The Wrecker
                                      Was Here !
The Crescent Kew


Has Victoria's ordeal by fire made Premier Brumby suddenly take leave of his senses at Kew Cottages? Or does he perhaps know something about his Government's wheeling and dealing with the Walker Corporation and former  Senator Graham Richardson, that the public does not yet know ?

How else can one explain the fact that at a time of National Disaster, the State Government is not only
demolishing the unsafe remains of those homes ravished by the bushfires, but has now rushed into demolishing the highest value emergency special accommodation that it still has available at Kew Cottages to help victims of the fires ?

Brian Walsh, President, Kew Cottages Coalition, said today that, "The demolition of the Hamer Centre and hydrotherapy pool this week appears to be Brumby's belligerent response to Boroondara Council's reasonable request for the Kew Cottages demolition to stop."

"This looks likes political vandalism of the worst kind ," Mr. Walsh said. As soon as Council wrote to the Premier requesting a halt to demolition, the Government's contractors, Walker Corporation and Delta Group, appear to have done the exact opposite ! Instead of halting demolition they have speeded up demolition. They have rushed their bulldozers from Stage 2 on the southern boundary of the Cottages right down to Stage 6 on the northern boundary, specifically to target and demolish the highest value public assets left standing on The Crescent. These are the very buildings that the Parliamentary Public Land Inquiry asked the Premier to investigate as a potential Respite Centre for the intellectually disabled."

Mr. Walsh said that,"now that the State's deal with Walker Corporation is under investigation by the Ombudsman, the Government appears to have simply panicked. Do they really think that if they adopt a 'scorched earth policy' it will help get them out of the mess that they have got themself into at Kew Cottages ?"

"There is no other rational explanation," Mr. Walsh said."There is no public benefit to be gained from the demolition. The Government's own blueprint for the site doesn't now envisage any new buildings will be constructed on this part of the site until 2012 - and their completion date has slipped back to 2014 at the earliest.  So the existing community facilities  on The Crescent, including the Hamer Centre swimming pool, could have been put to very good use for another couple of years at least,  giving Government plenty of time to review all their options for the future management of the Cottages for disability services, as requested by Boroondara Council.

"Indeed, in their haste, the Government seems to have now completely forgotten the fact that Clause B15 of the Contract now under investigation by the Ombudsman, actually requires Walker Corporation to ensure that there is continuous access for residents to the hydrotherapy pool in the Hamer Centre until an alternative pool is built.

"As the proposed new pool has not even been started, it looks like the Government has still got a lot of explain to do to existing DHS residents, as well as those on waiting lists for respite care," Mr. Walsh said.

Demolion of
                                        Unit 24 The Crescent
The Demolition of Unit 24 on The Crescent. Photo KCC.


Progress Leader
Tuesday 10th March 2009
Kew
                                          School Chockers

Kew school chockers
James Dowling writes..

KEW Primary School is “bursting at the seams” and the State Government has known of its predicament for more than 10 years.... >>


Are you surprised ?


Tuesday 3rd March 2009

And then there is the traffic issue...
Progress Leader

Opinion


Prevention needed,
                                        Letter to the Editor
Prevention needed - John Barlow, Kew


Click here to see what the traffic referred to by John Barlow looked like a year ago (April'08 ) And as Mark Staff has found, the traffic problem "during the morning and afternoon peak periods" has already got a lot worse...



Tuesday 24th February 2009

Disability Accommodation for Bushfire Victims.

Lobbyists hit back

Brian Walsh, KCC, and recently vacated
                          Units at Kew Cottages
Brian Walsh at Kew Cottages.  Photo: Progress Leader

James Dowling writes in the Progress Leader

A KEW lobby group, which has been trying to stop the Kew Cottages development, has denied it is exploiting the bushfire disaster to achieve its goal.... Planning Minister Justin Madden's spokesperson said that the buildings recently vacated were unsafe..(More >>)

Kew Cottages Coalition's President, Brian Walsh, said today that Mr. Madden's claim that the recently vacated buildings were 'unsafe' sounded as though the Minister was out of touch, and poorly advised.

"It would be good if Mr. Madden would visit the Cottages and see the accommodation for himself",  Mr. Walsh said.

"We suggested to the Premier that the Government could make available Units 23,  24, and 25 on The Crescent. DHS itself has said these units are among the 'best' on the site, and they should know - because DHS only recently vacated the buildings. So the  'safety' problems that Mr. Madden is worried about are unlikely to be structural, and should not be hard to fix." Mr. Walsh said.

"If Walker Corporation have already disconnected some of the services, sewerage, fire alarms, power etc, then they should be able to reconnect the services very quickly. Walker Corporation  already have the expertise on site, and I am sure they would be more than willing to help DHS get Emergency Accommodation safely up and running as soon as possible after the fires.

"There is also a Hydrotherapy Pool close to the DHS Units on The Crescent - in the Hamer Sport and Recreation Centre. I understand that Walker Corporation's contract requires them to ensure that there is continuous access to this pool at all times during the Construction Works. So I would hope that the Hydrotherapy Pool,
as well as the accommodation, could be made available by DHS to help bushfire victims." Mr. Walsh said.

Other Links:










Sunday 22nd February 2009

National Day of Mourning
Yarra Glen Bushfires
View of Yarra Glen during bushfires submitted by community volunteer (Photo: National Trust)

The National Trust asks people to support the Australian Red Cross – Victorian Bushfire Appeal at National Trust Properties this Sunday 22/2/09

The Trust a registered charity will also donate $1 for every visitor

Kew Cottages listing on the National Trust Register



Tuesday 17th February 2009
BushFire Appeal



Disability Accommodation for Bushfire Victims.

Boroondara Council last night resolved to write to the State Government to immediately cease demolition at Kew Cottages while they consider the use of the undeveloped portion of the land for disability and more immediately Bushfire relief.

Kew Cottages Coalition has  appealed to the State Government to immediately make available recently vacated accommodation at Kew Cottages for Bushfire victims - particularly those with special needs.



Saturday 7th February 2009
Black Saturday
Black Saturday Bushfires




Tuesday 3rd February 2009

Incompetance Shown
Incompetence shown - Elizabeth Bentley, Rosebud
Draw the line
Draw the line - Richard Grummet, Hawthorn East




Kew Public Meeting

Calls on the Government to halt all demolition, and all development approvals at Kew Cottages pending the outcome of the Ombudsman's investigation into the Government's Kew Cottages Development Agreement with Walker Corporation.... (More..)




Summary of
KCC
Presentation
(More..)

Motions carried
 

Kew Public Meeting
Tuesday 3rd February 2009

KEW COTTAGES COALITION INC. PRESENTS

KewRuption ?
at
Kew Cottages
and
Kew Residential Services
A MIDSUMMER NIGHT's

PUBLIC MEETING
MC Rod Quantock

Rod Quantock, MC


Guest Speaker

David Davis

David Davis MP
MLC Southern Metropolitan Region
Leader of the Opposition (Council)
Former Chairman, Select Committee on Public Land Development


  7pm Tuesday 3rd February 2009

Phyllis Hore Room
Kew Civic Centre
Cnr Cotham Road and Civic Drive
KEW


Melways  Map 45 D6


The next instalment in one of Melbourne's most contentious major projects.

Topics for discussion:

ALL WELCOME !










The Age
Tuesday 3rd February 2009

Big property developers help line the pockets of ALP

  • Royce Millar

MP Evan Thornley gave more money to
                            Victoria's ALP than any other individual.

MP Evan Thornley gave more money to Victoria's ALP than any other individual. Photo: Craig Abraham

JOHN Brumby's ALP continues to be bankrolled by companies either enjoying or seeking its favour, notably controversial property developers theWalker Corporation and Bensons Property Group.... >>>






Tuesday 27th January 2009
Cottages
                                            'conflict', Progress Leader,
                                            27-1-08p7
Cassie Maher writes in the Progress Leader:

KEW Cottages Coalition is demanding an independent investigation into heritage approvals for the contentious site....


( View  readers' comments here )




Wednesday 7th January 2009

"Cottages scheme no longer viable..."

Brian Walsh, President, Kew Cottages Coalition today claimed that the contentious "Walker Development Plan" for Kew Cottages launched by the Bracks Government in 2006,  has now stalled, and is currently 'dead in the water'.

Mr Walsh said, "Walker Corporation has simply ignored the green light it got for Stage 2 subdivision last year, and  is now seeking Government approval for a much higher density subdivision at the Cottages.

  "This action proves that Walkers themselves believe that the Government's original scheme is simply no longer viable," he said.

"So we now appear to have a clear case of a NSW builder faced with an unviable project asking to be bailed out by their partner the Victorian Government.

"It is not a healthy situation, and one we believe John Lenders, as Treasurer, should have a very close look at.

"As Treasurer, he has responsibilities to give directions under S.13 of the Project Development and Construction Act if there is a contingent liability to the State - which there clearly is at the Cottages."

  • View the  Kew Cottages Coalition Objection to Walker's Heritage Permit Application P13872 (Click here)

  • View Heritage Permit Application Prepared by Walker Corporation
    Proposed 49 Lot Subdivision of Stage 2 (Click here)

Summary of Proposed Changes to Stage 2

Up
  • Apartment Buildings (Details confidential)
  • Total Dwellings (Up 33% from 36 to 49 lots )
  •  'No Through Roads' (Up from  0  to 2)
Down
  • Parkland, Trees, and Open Space ( Details confidential)
  • Landscaped Road Reserves, Cycle Paths, and Footpaths  (Details confidential)
  • Through Roads designed with Parking, and Footpaths suitable for the disabled (Down From  8 to 4)

The Bottom Line
  • Moonscape the majority of Stage 2 Lots (47 of 49 Lots) by
    • Bulldozing all existing gardens and over 70 mature trees on the proposed private allotments  including:

      • 5 State 'Heritage Registered' Trees
      • (inc 2 Montery Pines, 2 Moreton Bay Figs, and a Bhutan Cypress)

      • 12  Indigenous Trees 'Protected' under Native Vegetation legislation
        (inc Blackwood, Black Sheoak, 
        Lightwood, and Yellow Box. )



2009
**
Follow kewcottages on Twitter



Kew Shuffle from The Archive...

2008
**
Follow kewcottages on Twitter
The Age
Saturday 13th December 2008
Cottages Plan Under Attack

Cottages plan under attack

  • Royce Millar, Age Investigative Unit
  • December 13, 2008

THE State Government is under mounting pressure to rethink its $400 million Kew Cottages redevelopment, as the first residents of the scheme call for a halt to the next stage of work.

At a public meeting this week residents from the 50-plus dwellings of the first stage of the project slammed the Government and its partner, the Walker Corporation, over what they said were changes to the designs of their homes after they were purchased off the plan.

The residents have complained about myriad faults in their homes, including missing features such as bluestone and steel. And they are angry at poor environmental standards — notably an absence of a water recycling strategy.

The meeting called on the Government to abandon stage two of the 500-dwelling project until problems were resolved in the first stage....


View Royce Millar's Full Story in the Melbourne Age >>

Related Coverage

Trouble in Kew

Trouble in Kew

 Dorothy Jones loves trees. Loves touching them and even ...



Boroondara Council

Boroondara Council Studley Ward

Public Meeting

Wednesday 10th December 2008
Cr.
                                            Phillip Healey

Studley Ward Councillor Phillip Healey invites residents and other stakeholders to attend a ward meeting, specifically regarding the former Kew Residential Services site in Main Drive Kew.

Andrew McIntosh MP for
                              Kew   John Lenders, ALP MLA Southern Metro  Evan Thornley, ALP MLA Southern
                              Metro

Andrea Coote MLA Southern MetroDavid DavisSue Pennicuik, Greens MLA Southern
                              Metro

All Local Members of State Parliament have been invited  inc:
Andrew McIntosh (Liberal) John Lenders (ALP)Evan Thornley (ALP)

Andrea Coote (Liberal),   David Davis  (Liberal, Chair. Public Land Inquiry) ,   Sue Pennicuik (Greens)

The meeting will be held at 7pm on Wednesday 10 December 2008 in the Freeman Room at the Holy Trinity Anglican Church, corner High and Pakington Streets, Kew.
(View Melways Map 45 D6 )

For further enquiries, please call 9278 4473.



Wednesday 10th December is the 60th Anniversary of

The Universal Declaration of Human Rights

PREAMBLE

    Whereas recognition of the inherent dignity and of the equal and inalienable rights of all members of the human family is the foundation of freedom, justice and peace in the world,...



Thursday 4th December 2008

heraldsun.com.au

MPs cue the Ombudsman

St Kilda, Kew deals to be investigated

theage.com.au
Royce Millar writes in the Melbourne Age:

THE redevelopment of Kew Cottages and the troubled revamp of the St Kilda triangle site are to be investigated by the State Ombudsman.

A Legislative Council resolution pressed by the Opposition and the Greens last night sought the investigations following a parliamentary committee's inquiry into the State Government's handling of public land development.

It is the first time the government watchdog has had such a referral from the upper house.

Last night Deputy Ombudsman John Taylor confirmed his office would conduct the investigations... (more)



Wednesday 3rd December 2008
Pressure for Ombudsman to Investigate

Today the Upper House of the State Parliament will debate whether the Victorian Ombudsman should investigate the Brumby Government over its
St Kilda Triangle and Kew Cottages land deals ...

Extract of Notice paper
                                            101

Former Senator Graham Richardson is not expected to attend.

Live audio of the debate will be broadcast on the Parliamentary Website


International Day of
                                              People with Disability
Wednesday, 3rd December is the United Nations
 International Day of People with Disability









Monday 7th July 2008
Lang Walker
"SYDNEY-based property baron Lang Walker
is said to boast he can 'buy and sell' any government in Australia.


 "So it would seem he costed the
Bracks Government at $100,000 in September 2006.
Just over a year before, in June 2005, Walker Corporation was chosen as the preferred developer for the $400 million transformation of Kew Cottages into upmarket housing..."

Political donations linked to developers, contractors


theage.com.au

Writes Royce Millar in The Melbourne Age Investigation

How Labor gets its cash


Royce Millar, The Age
                                Investigations teamRead Royce Millar's full story "With Strings Attached" here


President of the Kew Cottages Coalition, Brian Walsh, said, " The Age investigation now shows that the political donations linked to Graham Richardson and  the Main Drive Kew  development are just the tip of an iceberg ."

Mr. Walsh said, "It looks like the people of Victoria have been set up to be sold down the river in exchange for developer donations.  It's time for Premier Brumby to put a stop to this madness.

"Its time to stop stalling. Brumby must now prove to the Parliament beyond reasonable doubt, that he has got clean hands in this matter, and that neither his party, the Victorian Labor Party,  nor his Government, have been corrupted by the developer donations.

"If he is unable to do that immediately, then
I challenge the Premier to c
all the Sydney developers' bluff and:
  •  Stop the clock on the  Kew Cottages development;
  •  Cancel further stages of the Walker Corporation contract; and
  •  Setup an Anti-corruption Commission in Victoria to investigate all of the donations identified by the Age."



Friday 13th June 2008

Madden can't recall

Madden can't recall signing

From: Herald Sun

PLANNING Minister Justin Madden was forced on to the back foot in Parliament yesterday when he couldn't remember if he'd signed off on stage two of the controversial Kew Cottages redevelopment.

Democratic Labor Party MP Peter Kavanagh refreshed Mr Madden's memory during Upper House Question Time, saying the minister had told Parliament on May 27 he was almost certain he had not given approval.

Mr Madden yesterday responded "I don't pretend to remember all those (documents) that come before me" and said he would take the question on notice.

Click here to read the full article on the Herald Sun website
heraldsun.com.au








 
Background
Environment
Issues


Monday 10th July 2006

Melbourne Channel 10 TV News Reports

"Yarra Bend Park May Now Be Under Threat"
from
Deadly Tree Disease
at
Kew Cottages


View  Windows Media 
wmv video file (1min39s):
mp3 file


(Archive ..)
Bracks Government Cover up on
Biosecurity
Threat to Yarra ?



Tuesday 14th March 2006

Brian Walsh tells the ABC's 774, Jon Faine, he is astounded that the Government now claims it was unaware of the discovery of the fungus at Kew Cottages. Walsh says the Government claim is nonsense, "our information is that they have known for weeks.. " (see below)

Listen to the full Interview mp3 audio (2min 34s): mp3 file


Herald Sun 14.3.2006 p.31








 Feedback: If you see any errors or have any questions or suggestions on what is shown on this website, please let us know  so that we can correct or extend the information provided.
Note:
  1. Every effort is made to ensure the accuracy of the electronic information presented on this site. However, Kew Cottages Coalition accepts no responsibility for any loss occasioned to any person acting or refraining from action as a result of the material presented in this service. 

Home | Challenge for Change| Links | Archive | Site Map
**
Follow kewcottages on Twitter

 © 2006 Kew Cottages Coalition
Reg # A0044698H